





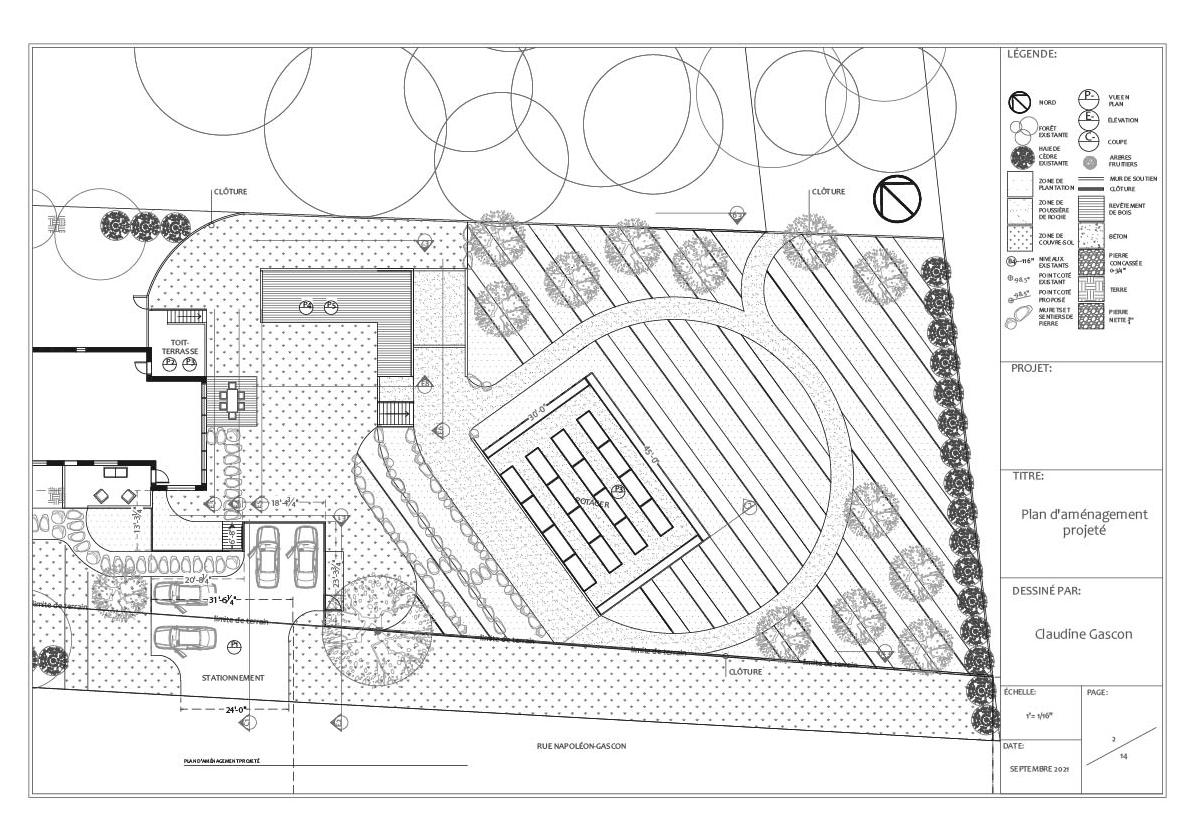
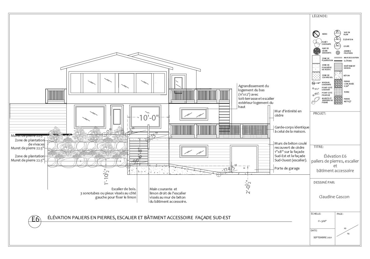
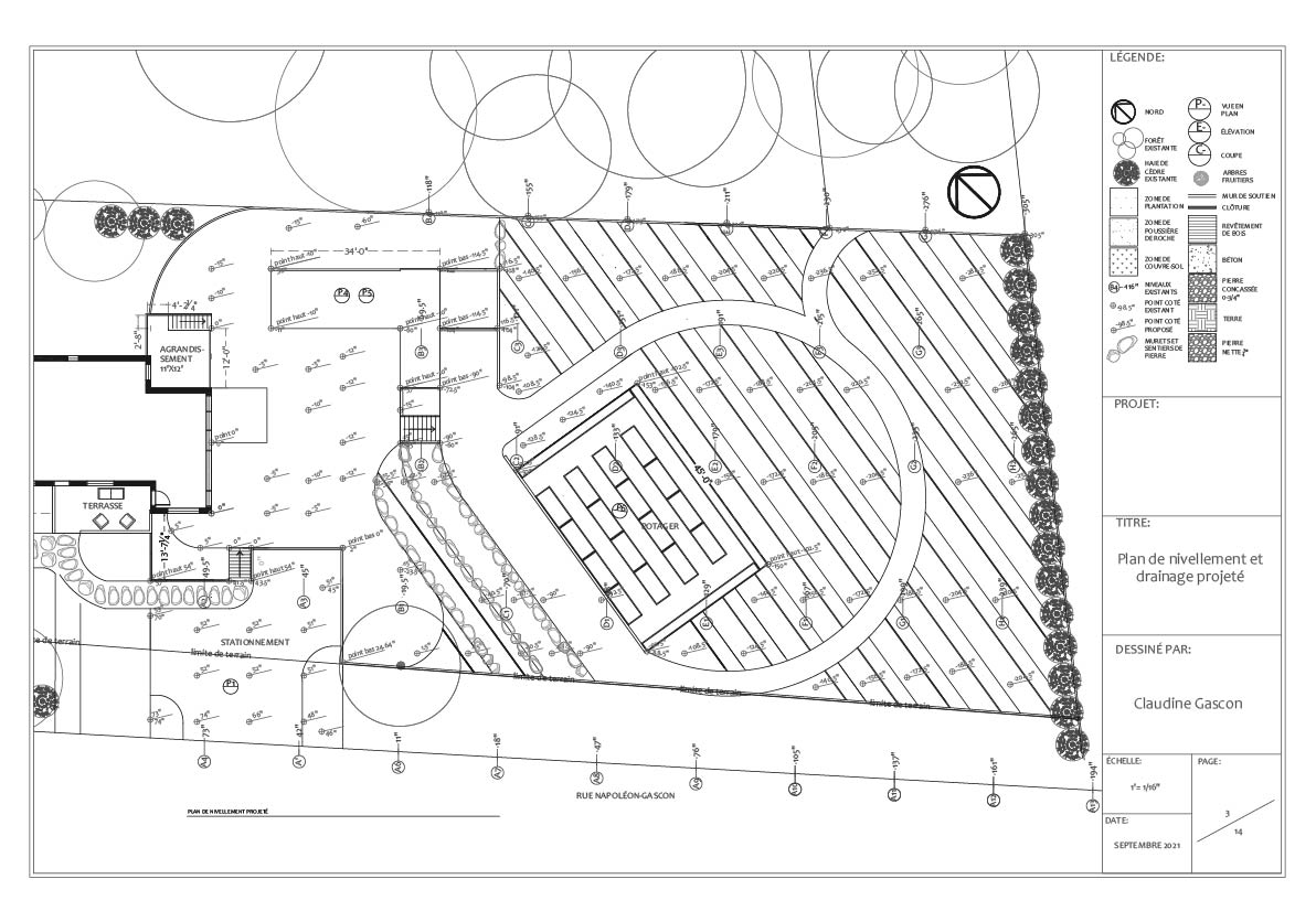
Exemple : Documents extras au besoin (étape 6)
Après discussion des besoins et du modèle de réalisation de votre projet, différents plans annexes sont élaborés pour le préciser.
-Perspective 3D;
-Élévations;
-Plan de nivellement et drainage;
-Coupe de terrain;
-Plan d'irrigation.

Exemple : Documents extras au besoin (étape 6)
Prix de vente$0.00
Prix normal (/)






