





Exemple 4 : Projet de conception
Projet de 1000 pieds carrés à Montréal
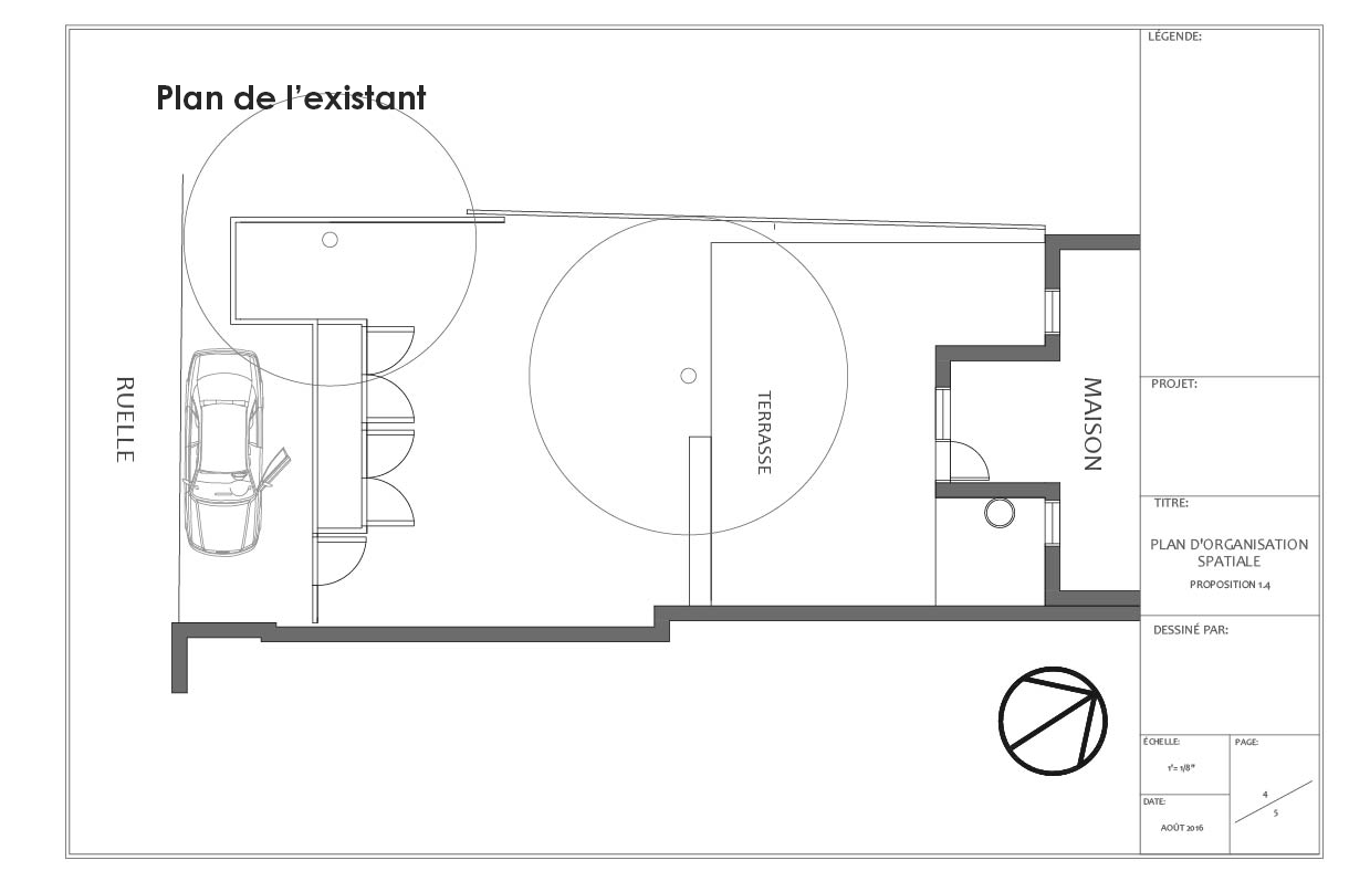
Petite cour à croquer développée pour un maximum de production et de convivialité à faible entretien.
Comme on peut voir sur les images, trois propositions d'organisation de l'espace ont été élaborées avant de finaliser le plan de base ergonomique avec la proposition quatre.
Lire un article de La Presse qui parle de ce projet
Visionner une vidéo de réalisation de ce projet
En savoir plus sur notre service de conception en aménagement paysager comestible
Faites nous part de votre projet

Exemple 4 : Projet de conception
Prix de vente$0.00
Prix normal (/)






