




Exemple 5 : Projet de conception
Projet de 7500 pieds carrés sur la Rive-Nord de Montréal
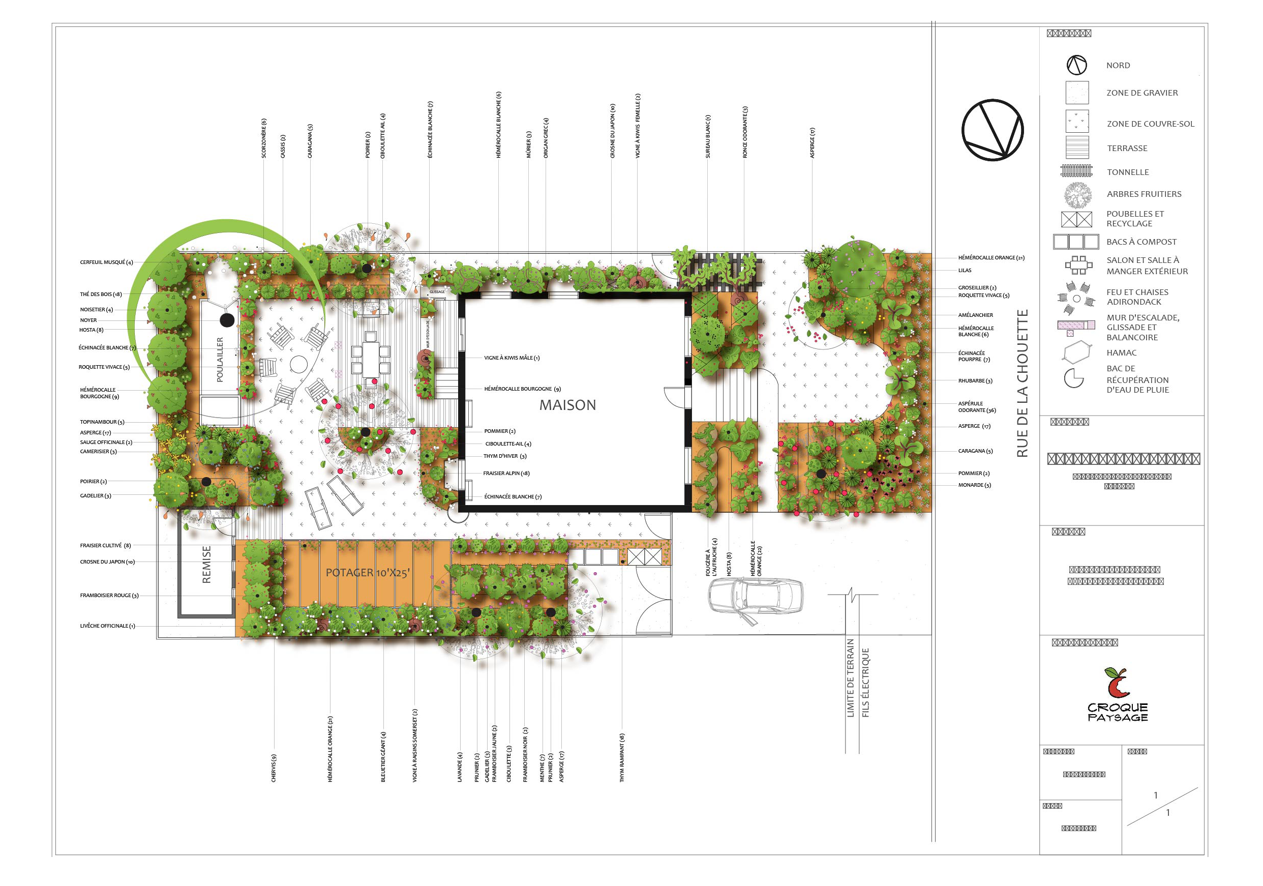
Terrain type de banlieue optimiser au maximum pour accueillir un potager, un poulailler, une diversité de vivaces comestibles et des espaces de vie pour la famille.
Comme on peut voir sur les images, deux propositions d'organisation de l'espace ont été élaborées avant de finaliser le plan de base ergonomique avec la proposition trois.
Faites nous part de votre projet

Exemple 5 : Projet de conception
Prix de vente$0.00
Prix normal (/)






